WILSONVILLE PUBLIC WORKS
TILT-UP CONCRETE OFFICE BUILDING & SERVICE VEHICLE CAMPUS
Completed 2024
Contractor: Emerick Construction
Wilsonville, OR
SD/DD/CD Team:
Andrew Kraus, Architect, Project Manager
Tim Grinstead, Architect
Evan Stravers, Architect/Design Staff
Megan Shmitz, Design Staff
Brandon Dole, Design Staff
Manuel Saldivar-Aguirre, Design Staff
CA Team:
Brandon Dole, Project Manager
Evan Stravers, Architect
Megan Shmitz, Design Staff

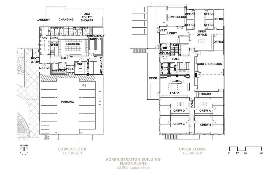
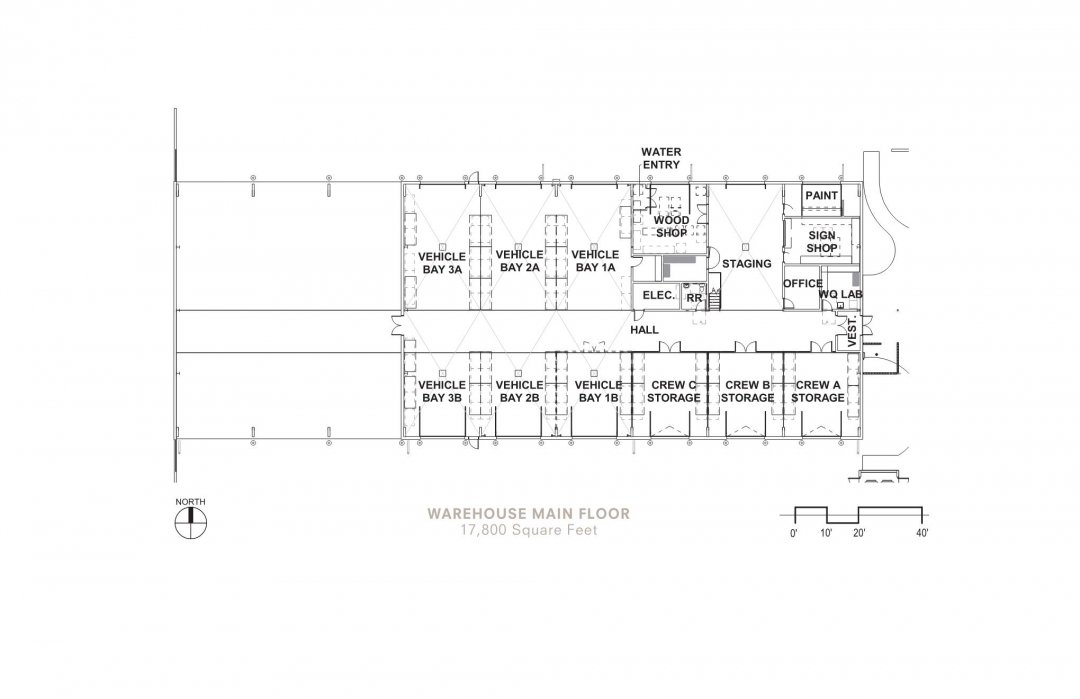
NE Admin Building Rendering
Image: Evan Stravers

West Elevation Rendering
Image: Evan Stravers

Bird's Eye View Rendering
Image: Evan Stravers


